Automatización
DesignSpark Electrical, nuevo software CAD gratuito para sistemas eléctricos, de RS Components
DesignSpark Electrical, nuevo software CAD gratuito para sistemas eléctricos, de RS Components
RS Components acaba de lanzar mundialmente DesignSpark Electrical, una herramienta CAD de diseño gratuito que permite a los profesionales de la ingeniería ahorrar tiempo en sus diseños y reducir errores, gracias a un software de diseño, respaldado por Schneider Electric.
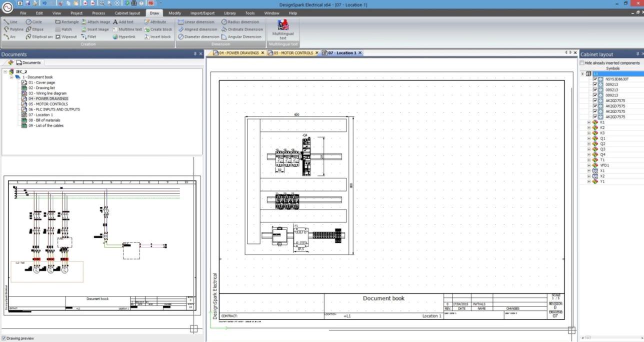
DesignSpark Electrical es un paquete CAD completo y específico para el desarrollo de proyectos eléctricos, que cuenta con todas las funcionalidades esenciales y avanzadas de estos paquetes y optimiza considerablemente el método de diseño actual para sistemas eléctricos y de automatización y ayuda a mejorar la capacidad que los clientes de RS tendrán para diseñar.
Un elemento clave del software es la integración de una librería que cuenta con más de 250.000 componentes, de los cuales 80.000 pertenecen a Schneider Electric y 10.000 a RS; todos ellos disponibles para ser añadidos fácilmente a los diseños en los que estén trabajando los clientes. Otras funcionalidades clave son las herramientas de diseño eléctrico inteligentes y especializadas y la validación y búsqueda de referencias en tiempo real para permitir la creación de configuraciones de paneles en 2D, todo ello dirigido al ahorro de tiempo y la prevención o reducción del número de errores.
